Lựa chọn kích thước bàn cầu Toto như nào cho phù hợp với không gian nhà vệ sinh là điều không hề dễ dàng. Các bạn đang quan tâm đến vấn đề này có thể tham khảo mẹo lựa chọn kích thước bàn cầu Toto sao cho phù hợp với phòng tắm nhất dưới dây.
- Hướng dẫn lắp đặt thiết bị vệ sinh toto chính xác – nhanh chóng
- Những lưu ý khi sử dụng bàn cầu thông minh TOTO
Các loại bồn cầu Toto được ưa chuộng hiện nay
Bồn cầu Toto là một trong các sản phẩm thiết bị vệ sinh Toto được người dùng hết sức ưa chuộng hiện nay. Bên cạnh những ưu điểm vượt trội về tính năng thì các sản phẩm của thương hiệu này. Một số loại bồn cầu Toto được ưa chuộng hiện nay đang được Hải Linh phân phối đến người dùng như:

Dòng sản phẩm này với thân được làm bằng sứ cao cấp, với về mặt luôn trắng bóng với thời gian. Bên cạnh đó sứ còn được phủ lớp men CEFIONTECT có khả năng chống vi khuẩn, bám bẩn hết sức hiệu quả.
Sản phẩm không gây độc hại, đảm bảo an toàn cho sức khỏe của người sử dụng. Lòng thân của bồn cầu được thiết kế hoàn hảo, mang lại sự thoải mái, tiện ích nhất cho người dùng.
Nắp bồn cầu được làm bằng nhựa PP có độ dẻo cao và độ bền và bóng cũng hết sức tối ưu. Cùng với công nghệ xả TORNADO hiện đại sẽ cuốn trôi mọi vết bẩn được hiệu quả nhất
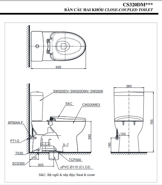
♦ Bồn cầu 2 khối Toto
Dòng sản phẩm này được chú trọng thiết kế tinh tế, tỉ mỉ đến từng đường nét, chi tiết. Cũng giống như dòng sản phẩm 1 khối, thân bồn cầu và sứ trắng cao cấp và lớp men chống vi khuẩn hiệu quả.
Độ bóng trên bề mặt của sản phẩm được đánh giá rất cao nhờ công nghệ CEFIONTECT. Cùng với công nghệ xả TORNADO sẽ giúp đánh bay mọi chất thải được hiệu quả nhanh chóng, vệ sinh.

♦ Bồn cầu nắp rửa điện tử Washlet Toto
Bồn cầu nắp rửa điện tử Washlet Toto là dòng bồn cầu thông minh tự động rất cao cấp hiện nay. Sản phẩm này với nắp Washlet sẽ mang đến cho người dùng rất nhiều các tiện ích thiết thực như: rửa, sưởi ấm nắp ngồi, thực hiện sấy khô, cùng với đó là rất nhiều các chức năng khác nữa.
♦ Bồn Cầu nắp cơ Eco Washer
Bàn cầu nắp cơ Eco Washer là một sản phẩm được thiết kế rất đơn giản, nhưng vẫn mang đến nét sang trọng cho không gian phòng tắm. Mẫu bồn cầu này mang đến cho người dùng những tiện nghi tuyệt vời cùng với độ bền tối ưu.
Đặc biệt, dòng sản phẩm này được sử dụng vật liệu và công nghệ rất thân thiện với sức khỏe người dùng và môi trường. Chính vì vậy, sản phẩm này hết sức được người tiêu dùng ưa chuộng, lựa chọn cho gia đình mình.
♦ Bồn cầu điện tử Toto
Dòng sản phẩm bồn cầu điện tử là một sản phẩm được tích hợp nắp rửa điện tử Washlet với các chức năng như: sấy khô, khử mùi, hay sưởi ấm nắp chỗ ngồi…Nhờ vậy sản phẩm này luôn mang đến cho người dùng những tiện ích, trải nghiệm tuyệt vời nhất.
Bên cạnh đó sòng sản phẩm này được được trang bị nắp đóng êm, (thực hiện đóng mở tự động), hay có đèn phát sáng (ban đêm). Cùng với đó là công nghệ khử trùng Ewater tiên tiến, giúp cho việc vệ sinh dễ dàng, bề mặt luôn sạch sẽ và còn có khả năng kháng khuẩn hiệu quả
Mẹo lựa chọn kích thước bàn cầu Toto
Nhằm đáp ứng nhu cầu của người tiêu dùng hiện nay, Toto co ra các dòng sản phẩm bồn cầu với rất nhiều kích thước khác nhau. Chính điều đó lại khiến cho người tiêu dùng băn khoăn không biết nên lựa chọn sản phẩm nào cho phù hợp, hiệu quả nhất với gia đình mình.
Mặt khác, không phải ai cũng biết được việc lựa chọn kích thước bồn cầu như thế nào cho phù hợp nhất. Do đó, khi quyết định mua bồn cầu, bạn cần phải tham khảo, xem xét hết sức kĩ càng trước khi đưa ra quyết định cuối cùng.
– Dòng bồn cầu 1 khối Toto là những sản phẩm có kích thước được thiết kế tương đối lớn. Chính vì vậy, các sản phẩm này sẽ thường được sử dụng trong những không gian rộng rãi.
Bạn cũng nên lưu ý rằng, kích thước bàn cầu Toto của dòng sản phẩm này khá “kén” không gian nhà tắm, nhà vệ sinh. Vì vậy không phải bất cứ phòng tắm nhà vệ sinh nào cũng có thể phù hợp với các sản phẩm này.
– Dòng bồn cầu 2 khối Toto và bồn cầu treo tường thường là những sản phẩm được thiết kế nhỏ và gọn gàng hơn. Chính vì vậy kích thước bàn cầu Toto cũng không được lớn như dòng bồn cầu 1 khối.
Chính vì vậy, bạn có thể thoải mái lựa chọn các sản phẩm bồn cầu 2 khối Toto cho gia đình mình. Tuy nhiên bạn chỉ cần lưu ý sao cho thiết kế được phù hợp và sắp đặt vị trí cũng như kết hợp với những thiết bị vệ sinh phòng tắm khác sao cho hợp lý, tiện dụng nhất.
Hi vọng những gì chúng tôi nêu trên đã giúp cho các bạn nắm được mẹo lựa chọn kích thước bàn cầu Toto phù hợp với phòng tắm. Qua đó giúp cho các bạn sẽ có thể lựa chọn được sản phẩm phù hợp, xây dựng nên một công trình tiện ích nhất.
